L A B O R A T O R I O  D I  A R C H I T E T T U R A  E  D E S I G N


SUPREME SPORT VILLAGE

TYPE:SPORT CLUB

LOCATION:VIALE GIORGIO MORANDI, ROME, ITALY

PROGRAM:1700 m² SPORT+ 300 m² COMMERCIAL

DESIGN:2009

BUILDING:2016

CLIENT:TOR SAPIENZA 2008 s.r.l

ARCHITECTS: LAD LABORATORIO DI ARCHITETTURA E DESIGN

PATNERS IN CHARGE: FRANCESCO NAPOLITANO (ARCHITECTURE), SIMONE LANARO (INTERIOR DESIGN)

DESIGN TEAM: MICHELANGELO SABUZI GIULIANI, MARIA CARLA LINI, MARCELLO AMALFITANO

ENGLISH TEXT

 

TECHNICAL DRAWINGS

 

 

Il “Supreme Sport Village” è un centro sportivo situato a Roma, nel quartiere Tor Sapienza, nella periferia est della città, tra la Via Collatina e la Via Prenestina.

Il progetto si inserisce nelle aree verdi situate lungo Viale Giorgio Morandi ed è disposto nel lotto in modo che il volume architettonico funzioni come un filtro tra il parcheggio e i campi sportivi.

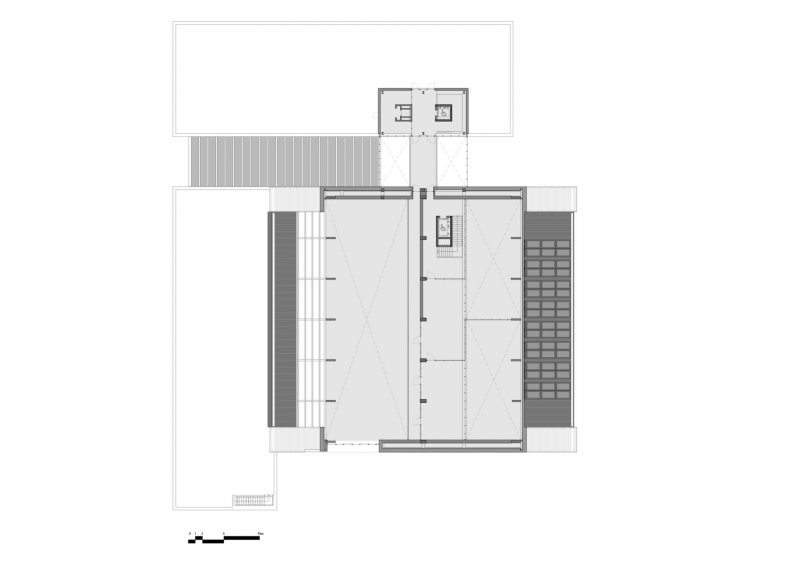
L’edificio è composto da tre unità funzionali: i primi due blocchi hanno un solo livello e una copertura piana praticabile, il corpo principale presenta una copertura a due falde inclinate e una doppia altezza.

Il primo blocco, parallelo a Viale Giorgio Morandi, è distaccato dall’aggregato degli altri due: questo distaccamento conforma una hall d’ingresso passante che connette direttamente il parcheggio ai campi sportivi. All’interno della hall sono organizzati il controllo e la distribuzione dei percorsi verso i blocchi funzionali. I connettivi verticali sono posizionati simmetricamente rispetto all’androne, a ridosso dell’ingresso sud. Le due scale sono utili a differenziare i percorsi: quella del primo blocco raccoglie i visitatori e gli utenti delle attività commerciali e di ristorazione mentre la scala del corpo principale è utilizzata dagli atleti. Tutti gli spogliatoi, distinti in quelli per il nuoto e quelli per le attività ginniche, sono situati nel piano interrato.

La prima unità funzionale, ad un unico livello fuori terra, contiene le attività commerciali e di ristorazione; tutte le funzioni sono accessibili sia dall’esterno sia dall’androne. Il secondo blocco, anch’esso monopiano, è servito da un apposito connettivo e contiene i servizi, l’amministrazione, uno spazio per i bambini e le attività di fisioterapia e di recupero atleti. Anche in questo caso tutte le funzioni godono della doppia accessibilità dall’esterno e dall’interno. Il corpo principale contiene due vasche per il nuoto ed una palestra per le attività fitness indoor. Le vasche interne sono in comunicazione visiva e diretta con la piscina esterna.

La hall varia la propria altezza a ridosso dell’ingresso verso i campi, conformando un volume parallelepipedo che funge da sbarco sulla copertura praticabile del primo blocco e da connessione alla doppia altezza presente nel corpo principale. Tale livello mezzanino contiene un camminamento riservato ai visitatori, accessibile da un apposito percorso, ed uno spazio fitness, accessibile dalla scala del corpo principale in modo da separare i percorsi dei visitatori da quelli degli atleti. Tutte le funzioni sportive sui vari livelli sono tra loro connesse da un grande ascensore, in grado di trasportare agevolmente un ferito e condurlo al primo soccorso.

 

 

RSS    ITALIANO - ENGLISH   OLD VERSION SITE   Social Flickr Tumblr google plus Youtube Linkedin twitter facebook Vimeo Pinterest